Harmony in Design: Elegant Apartment in Tri-City
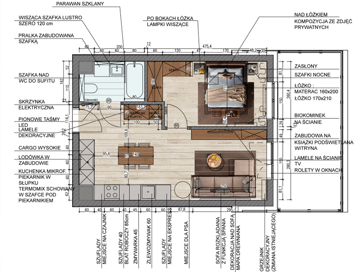
Surface: 39m2










As the architect behind this meticulously crafted project, I am thrilled to present a unique apartment design spanning 39 square meters, offering a perfect blend of elegance and functionality tailored for the Tri-City area. This space exudes charm with its warm wooden flooring, providing a natural allure that sets the tone for the entire interior. The choice of neutral beige walls serves as a versatile backdrop, allowing for the accentuation of distinctive interior elements. At the heart of the design, the kitchen stands as a focal point, boasting tall cabinets in a soft cashmere hue, complemented by a sleek quartz countertop that infuses a touch of modernity. The taupe sofa in the open-plan living area creates a cozy ambiance while seamlessly connecting with the kitchen, facilitating fluidity of light and space throughout. Additionally, the sophisticated feature wall with a TV and slatted bookcase adds both functionality and aesthetic appeal to the space. Positioned centrally within the beige kitchen, the wooden dining table becomes a hub for gatherings and shared meals, enhancing the convivial atmosphere of the home. Moving to the bedroom, adorned in warm tones, it serves as a tranquil sanctuary, adorned with personal photographs above the bed, imbuing the space with a sense of intimacy. The wardrobe units, finished in a blend of wood and cashmere tones, offer ample storage while harmonizing effortlessly with the overall interior scheme. In the bathroom, the fusion of warm beige tones with wooden accents creates an ambiance of relaxation and serenity, ideal for unwinding after a busy day. This exceptional apartment design, characterized by its refined details and thoughtful solutions, is sure to captivate discerning clients seeking high-quality interior architecture in the Tri-City area.